平塚市出縄 新築戸建全10棟 1号棟

3,380万円

神奈川県平塚市出縄

東海道本線「平塚」駅バス20分神奈川中央交通「高村団地」停歩6分

価格
3,380万円
間取り/建物面積
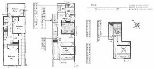
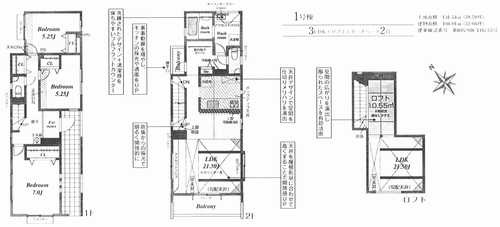
3LDK/106.01㎡
所在地
神奈川県平塚市出縄
築年
2025年12月(予定)
駐車
有(2台)
交通

東海道本線平塚」駅 バス20分 神奈川中央交通「高村団地」 停歩6分

平塚市出縄 新築戸建全10棟 1号棟の基本情報

物件名
平塚市出縄 新築戸建全10棟 1号棟
価格
3,380万円
建物面積
106.01㎡
土地面積
39.79坪(131.54㎡)
築年月
2025年12月(予定)
総戸数
10戸
所在地
神奈川県平塚市出縄
交通

東海道本線平塚」駅 バス20分 神奈川中央交通「高村団地」 停歩6分

平塚市出縄 新築戸建全10棟 1号棟の詳細情報

設備条件
  • 駐車2台可
  • 耐震構造
設備(その他)
    -
駐車場/月額
有(2台)/0円 ※車種による
土地権利
所有権
国土法届出
不要
用途地域
第一種中高層住居専用
取引態様
一般媒介
引渡し
相談
備考
徒歩6分の場所に平塚市立勝原小学校があります。地盤が弱いと大惨事になりかねませんので地盤調査はとても大切です。ホルムアルデヒド対策済みの物件ですので、健康リスクが少ないです。室内環境まで左右する基礎は、強靭なベタ基礎となっております。東海道本線平塚近辺にある、素敵な空間を演出する戸建てをホームプランナーがご提案致します。chigasaki@shounan-homeplanner.co.jpからいつでもご連絡下さい。

平塚市出縄 新築戸建全10棟 1号棟のコメント(おすすめポイント)

こだわりポイント満載の平塚市出縄 新築戸建全10棟 1号棟。徒歩6分の場所に平塚市立勝原小学校があります。一生に一度のマイホーム探しは、ぜひ新築戸建てで。地震のエネルギーを吸収する、制震構造になっています。0120-971-570からホームプランナーへお問い合わせいただければ、不動産情報はもちろん、地域情報も併せてご紹介致します。

平塚市出縄 新築戸建全10棟 1号棟で募集中の物件

  1. 32.06坪 (106.01㎡)

    3,380万円(105.43万円/坪)

周辺施設

  • いずみ保育園の画像

    保育園

    いずみ保育園

    258m(4分)

  • 平塚市立山城中学校の画像

    中学校

    平塚市立山城中学校

    469m(6分)

  • 平塚市立勝原小学校の画像

    小学校

    平塚市立勝原小学校

    474m(6分)

  • 神奈川銀行高村支店の画像

    銀行

    神奈川銀行高村支店

    491m(7分)

  • 平塚病院の画像

    総合病院

    平塚病院

    553m(7分)

  • 平塚十全病院の画像

    総合病院

    平塚十全病院

    944m(12分)

  • 旭交番の画像

    警察

    旭交番

    962m(13分)

  • 平塚市西図書館の画像

    図書館

    平塚市西図書館

    969m(13分)

  • 清水学園付属幼稚園の画像

    幼稚園

    清水学園付属幼稚園

    1083m(14分)

  • 平塚旭郵便局の画像

    郵便局

    平塚旭郵便局

    1092m(14分)

  • 旭南公民館の画像

    公民館

    旭南公民館

    1331m(17分)

近隣の物件

  1. 平塚市田村8丁目

    4LDK (98.54㎡)

    3,590万円

  2. 平塚市諏訪町

    4LDK (103.00㎡)

    4,699万円

  3. 平塚市諏訪町

    4LDK (103.89㎡)

    4,499万円

  4. 平塚市達上ケ丘

    4LDK (104.89㎡)

    3,480万円

よく見られている物件

  1. 小田原市飯田岡

    3LDK (98.53㎡)

    2,799万円

  2. 藤沢市辻堂元町2丁目

    3LDK (94.39㎡)

    5,980万円

  3. 綾瀬市上土棚北4丁目

    3LDK+S(納戸) (90.72㎡)

    2,680万円

  4. 海老名市望地2丁目

    3LDK (98.23㎡)

    4,950万円

平塚市出縄 新築戸建全10棟 1号棟

お気軽にお問い合わせください

無料お問い合わせ

株式会社ホームプランナー

0120-971-570

9:30~20:00

(休:水曜日)