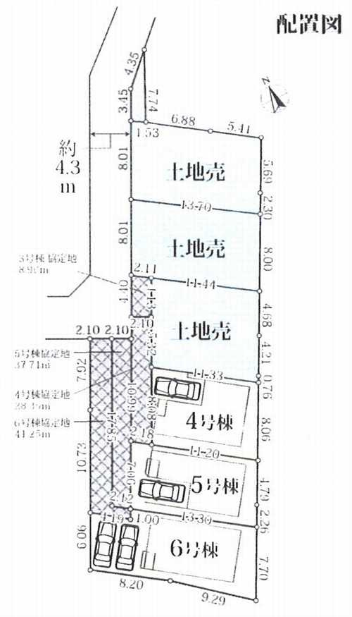
茅ヶ崎市美住町4期 新築戸建全6棟 4号棟

4,780万円

神奈川県茅ヶ崎市美住町

東海道本線「辻堂」駅徒歩23分

価格
4,780万円
間取り/建物面積
3LDK/93.84㎡
所在地
神奈川県茅ヶ崎市美住町
築年
2025年12月(予定)
駐車
有(1台)
交通

東海道本線辻堂」駅 徒歩23分

茅ヶ崎市美住町4期 新築戸建全6棟 4号棟の基本情報

物件名
茅ヶ崎市美住町4期 新築戸建全6棟 4号棟
価格
4,780万円
建物面積
93.84㎡
土地面積
35.84坪(118.49㎡)
築年月
2025年12月(予定)
総戸数
6戸
所在地
神奈川県茅ヶ崎市美住町
交通

東海道本線辻堂」駅 徒歩23分

茅ヶ崎市美住町4期 新築戸建全6棟 4号棟の詳細情報

設備条件
  • 閑静な住宅地
  • 海が近い
設備(その他)
    -
駐車場/月額
有(1台)/0円 車種による
土地権利
所有権
国土法届出
不要
用途地域
第一種低層住居専用
取引態様
仲介
引渡し
相談
備考
ぜひ一度見ていただきたい、「茅ヶ崎市美住町4期 新築戸建全6棟 4号棟」です。徒歩7分の場所に茅ケ崎市立松浪小学校があります。綺麗で清潔感のある室内が新築戸建ての特徴です。基礎がベタ基礎となっているので、丈夫な物件です。0120-971-570からお電話いただければ、ホームプランナーのスタッフがお客様の希望条件に沿った不動産をお探し致します。

茅ヶ崎市美住町4期 新築戸建全6棟 4号棟のコメント(おすすめポイント)

徒歩7分の場所に茅ケ崎市立松浪小学校があります。ニーズの高いベタ基礎構造になっている物件は、安全性が高く多くの方にご好評です。初めてのマイホームに新築戸建てはいかがでしょうか。0120-971-570からお電話いただければ、ホームプランナーのスタッフがお客様の希望条件に沿った不動産をお探し致します。

茅ヶ崎市美住町4期 新築戸建全6棟 4号棟で募集中の物件

  1. 28.38坪 (93.84㎡)

    4,780万円(168.43万円/坪)

周辺施設

  • 丸山内科クリニックの画像

    内科

    丸山内科クリニック

    331m(5分)

  • 茅ケ崎市小和田公民館の画像

    公民館

    茅ケ崎市小和田公民館

    396m(5分)

  • 茅ケ崎市立松浪小学校の画像

    小学校

    茅ケ崎市立松浪小学校

    528m(7分)

  • 湘南すずきクリニックの画像

    クリニック

    湘南すずきクリニック

    536m(7分)

  • まつなみ幼稚園の画像

    幼稚園

    まつなみ幼稚園

    615m(8分)

  • 茅ケ崎もりのこ保育園の画像

    保育園

    茅ケ崎もりのこ保育園

    631m(8分)

  • 湘南信用金庫若松町支店の画像

    銀行

    湘南信用金庫若松町支店

    720m(9分)

  • 平和町交番の画像

    警察

    平和町交番

    763m(10分)

  • 平和学園幼稚園の画像

    幼稚園

    平和学園幼稚園

    831m(11分)

  • 茅ケ崎市立松浪中学校の画像

    中学校

    茅ケ崎市立松浪中学校

    898m(12分)

  • 茅ヶ崎松が丘郵便局の画像

    郵便局

    茅ヶ崎松が丘郵便局

    940m(12分)

  • 茅ヶ崎市消防団第13分団の画像

    消防署

    茅ヶ崎市消防団第13分団

    1595m(20分)

近隣の物件

  1. 茅ヶ崎市高田1丁目

    3SLDK (105.44㎡)

    4,499万円

  2. 茅ヶ崎市旭が丘

    4SLDK (105.57㎡)

    5,999万円

  3. 茅ヶ崎市旭が丘

    3SLDK (105.58㎡)

    5,349万円

  4. 茅ヶ崎市高田1丁目

    2SLDK (109.30㎡)

    4,349万円

よく見られている物件

  1. 海老名市望地2丁目

    3LDK (98.23㎡)

    4,950万円

  2. 綾瀬市上土棚北4丁目

    3LDK+S(納戸) (90.72㎡)

    2,680万円

  3. 厚木市長谷

    3LDK (89.42㎡)

    2,980万円

  4. 鎌倉市大船

    3LDK+S(納戸) (161.05㎡)

    4,999万円

茅ヶ崎市美住町4期 新築戸建全6棟 4号棟

お気軽にお問い合わせください

無料お問い合わせ

株式会社ホームプランナー

0120-971-570

9:30~20:00

(休:水曜日)