八王子市富士見町 新築戸建全3棟 2号棟

4,090万円

東京都八王子市富士見町

八高線「北八王子」駅徒歩16分

京王線「京王八王子」駅徒歩22分

価格
4,090万円
間取り/建物面積
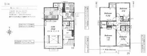
3LDK+S(納戸)/97.70㎡
所在地
東京都八王子市富士見町
築年
2025年8月(予定)
駐車
有(1台)
交通

八高線北八王子」駅 徒歩16分

京王線京王八王子」駅 徒歩22分

八王子市富士見町 新築戸建全3棟 2号棟の基本情報

物件名
八王子市富士見町 新築戸建全3棟 2号棟
価格
4,090万円
建物面積
97.70㎡
土地面積
32.13坪(106.24㎡)
築年月
2025年8月(予定)
総戸数
3戸
所在地
東京都八王子市富士見町
交通

八高線北八王子」駅 徒歩16分

京王線京王八王子」駅 徒歩22分

八王子市富士見町 新築戸建全3棟 2号棟の詳細情報

設備条件
  • 閑静な住宅地
  • 耐震構造
設備(その他)
    -
駐車場/月額
有(1台)/0円 (車種による)
土地権利
所有権
国土法届出
不要
用途地域
第一種低層住居専用
取引態様
仲介
引渡し
相談
備考
落ち着きのある室内と、趣のある外観が魅力の2025年8月築の物件です。こちらは清潔感のある新築戸建て物件です。こちらの物件は地震エネルギーを吸収し揺れを抑えられる制震構造です。こだわりの設備が整った新築物件です。0120-971-570からホームプランナーへお問い合わせいただければ、不動産情報はもちろん、地域情報も併せてご紹介致します。

八王子市富士見町 新築戸建全3棟 2号棟のコメント(おすすめポイント)

八高線北八王子駅周辺物件:八王子市富士見町 新築戸建全3棟 2号棟。落ち着きのある室内と、趣のある外観が魅力の2025年8月築の物件です。好評の新築物件なので、おすすめです。地震のエネルギーを吸収する、制震構造になっています。お客様のご要望をchigasaki@shounan-homeplanner.co.jpまでお申し付け下さい。八王子市にある八高線北八王子近辺の物件をお求めの方は、ホームプランナーまでお気軽にご依頼ください。

八王子市富士見町 新築戸建全3棟 2号棟で募集中の物件

  1. 29.55坪 (97.70㎡)

    4,090万円(138.41万円/坪)

近隣の物件

  1. 八王子市富士見町

    4LDK (98.53㎡)

    4,080万円

  2. 八王子市元八王子町3丁目

    3LDK (86.94㎡)

    2,880万円

  3. 八王子市元八王子町3丁目

    3LDK (87.57㎡)

    2,980万円

  4. 八王子市富士見町

    4LDK (97.49㎡)

    3,850万円

八王子市富士見町 新築戸建全3棟 2号棟

お気軽にお問い合わせください

無料お問い合わせ

株式会社ホームプランナー

0120-971-570

9:30~20:00

(休:水曜日)