茅ヶ崎市高田7期 新築戸建全5棟 1号棟

3,980万円

神奈川県茅ヶ崎市高田1丁目7-41

東海道本線「茅ケ崎」駅バス13分神奈川中央交通「高田(茅ヶ崎市)」停歩4分

相模線「北茅ケ崎」駅徒歩21分

価格
3,980万円
間取り/建物面積
4LDK/95.22㎡
所在地
神奈川県茅ヶ崎市高田1丁目7-41
築年
2025年2月(予定)
駐車
有(2台)
交通

東海道本線茅ケ崎」駅 バス13分 神奈川中央交通「高田(茅ヶ崎市)」 停歩4分

相模線北茅ケ崎」駅 徒歩21分

茅ヶ崎市高田7期 新築戸建全5棟 1号棟の基本情報

物件名
茅ヶ崎市高田7期 新築戸建全5棟 1号棟
価格
3,980万円
建物面積
95.22㎡
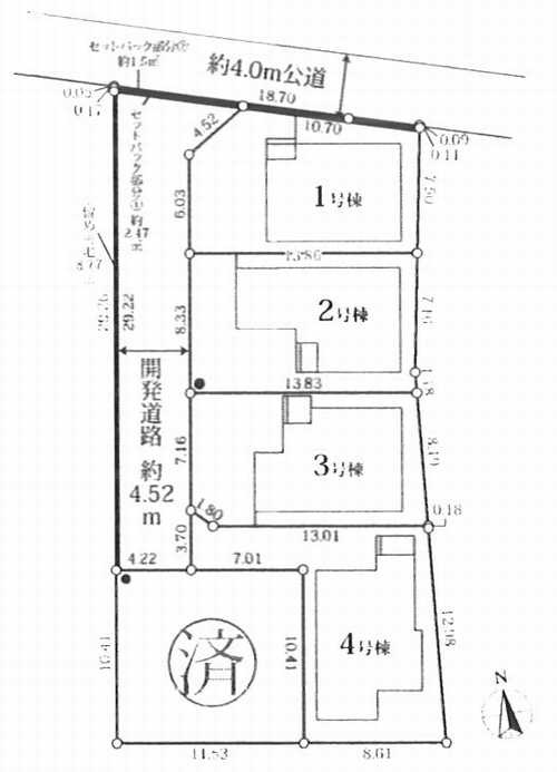
土地面積
34.18坪(113.01㎡)
築年月
2025年2月(予定)
総戸数
5戸
所在地
神奈川県茅ヶ崎市高田1丁目7-41
交通

東海道本線茅ケ崎」駅 バス13分 神奈川中央交通「高田(茅ヶ崎市)」 停歩4分

相模線北茅ケ崎」駅 徒歩21分

茅ヶ崎市高田7期 新築戸建全5棟 1号棟の詳細情報

設備条件
  • 駐車2台可
  • 耐震構造
設備(その他)
    -
駐車場/月額
有(2台)/0円 (車種による)
土地権利
所有権
国土法届出
不要
用途地域
第一種中高層住居専用/第二種低層住居専用
取引態様
一般媒介
引渡し
相談
備考
ぜひ一度見ていただきたい、「茅ヶ崎市高田7期 新築戸建全5棟 1号棟」です。地盤が弱いと大惨事になりかねませんので地盤調査はとても大切です。高い強度を誇るベタ基礎の物件ですので、耐震性も良好で安心です。新築戸建ての物件は、室内のレイアウトも自分好みに変更可能です。東海道本線茅ケ崎近くよりご提案しております、ホームプランナーならではの戸建て情報を是非ご覧下さい。連絡先は0120-971-570です。

茅ヶ崎市高田7期 新築戸建全5棟 1号棟のコメント(おすすめポイント)

「茅ヶ崎市高田7期 新築戸建全5棟 1号棟」のここがイチオシ。地盤調査済みなので、防災面での安心感が増します。害虫の侵入や床下からの湿気に強いベタ基礎の物件です。新築の戸建て物件です。茅ヶ崎市でなら、お客様のご希望の不動産情報が見つかります。まずは0120-971-570からホームプランナーまでご連絡ください。

茅ヶ崎市高田7期 新築戸建全5棟 1号棟で募集中の物件

  1. 28.80坪 (95.22㎡)

    3,980万円(138.19万円/坪)

周辺施設

  • 茅ケ崎すみれ幼稚園の画像

    幼稚園

    茅ケ崎すみれ幼稚園

    311m(4分)

  • 茅ケ崎市消防本部茅ケ崎市消防署警備課松林出張所の画像

    消防署

    茅ケ崎市消防本部茅ケ崎市消防署警備課松林出張所

    312m(4分)

  • 原クリニックの画像

    内科

    原クリニック

    415m(6分)

  • なぎさ第二保育園の画像

    保育園

    なぎさ第二保育園

    578m(8分)

  • 湘南信用金庫高田支店の画像

    銀行

    湘南信用金庫高田支店

    583m(8分)

  • 鶴が台交番の画像

    警察

    鶴が台交番

    658m(9分)

  • 茅ケ崎市立室田小学校の画像

    小学校

    茅ケ崎市立室田小学校

    703m(9分)

  • 茅ケ崎高田郵便局の画像

    郵便局

    茅ケ崎高田郵便局

    890m(12分)

  • 湘南マドカ幼稚園の画像

    幼稚園

    湘南マドカ幼稚園

    1070m(14分)

  • 茅ケ崎市立病院の画像

    総合病院

    茅ケ崎市立病院

    1173m(15分)

  • 茅ケ崎市立図書館香川分館の画像

    図書館

    茅ケ崎市立図書館香川分館

    1201m(16分)

  • 円蔵中学校の画像

    中学校

    円蔵中学校

    1208m(16分)

近隣の物件

  1. 茅ヶ崎市南湖6丁目

    3LDK (76.17㎡)

    2,999万円

  2. 茅ヶ崎市南湖4丁目

    3SLDK (102.87㎡)

    4,980万円

  3. 茅ヶ崎市香川4丁目

    4LDK (87.98㎡)

    2,850万円

  4. 茅ヶ崎市南湖4丁目

    4LDK (99.62㎡)

    5,580万円

茅ヶ崎市高田7期 新築戸建全5棟 1号棟

お気軽にお問い合わせください

無料お問い合わせ

株式会社ホームプランナー

0120-971-570

9:30~20:00

(休:水曜日)