厚木市上依知第30 新築戸建全6棟 3号棟

2,580万円

神奈川県厚木市上依知

相模線「原当麻」駅バス11分神奈川中央交通「上依知」停歩7分

小田急小田原線「本厚木」駅バス35分神奈川中央交通「上依知」停歩6分

価格
2,580万円
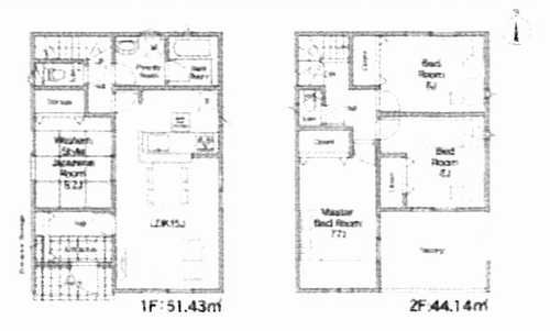
間取り/建物面積
4LDK/95.57㎡
所在地
神奈川県厚木市上依知
築年
2026年1月(予定)
駐車
有(2台)
交通

相模線原当麻」駅 バス11分 神奈川中央交通「上依知」 停歩7分

小田急小田原線本厚木」駅 バス35分 神奈川中央交通「上依知」 停歩6分

厚木市上依知第30 新築戸建全6棟 3号棟の基本情報

物件名
厚木市上依知第30 新築戸建全6棟 3号棟
価格
2,580万円
建物面積
95.57㎡
土地面積
42.07坪(139.10㎡)
築年月
2026年1月(予定)
総戸数
6戸
所在地
神奈川県厚木市上依知
交通

相模線原当麻」駅 バス11分 神奈川中央交通「上依知」 停歩7分

小田急小田原線本厚木」駅 バス35分 神奈川中央交通「上依知」 停歩6分

厚木市上依知第30 新築戸建全6棟 3号棟の詳細情報

設備条件
  • 駐車2台可
  • 耐震構造
  • 宅配ボックス
設備(その他)
    -
駐車場/月額
有(2台)/0円 (車種によります)
土地権利
所有権
国土法届出
不要
用途地域
第一種中高層住居専用
取引態様
一般媒介
引渡し
相談
備考
徒歩13分の場所に厚木市立上依知小学校があります。初めてのマイホームに新築戸建てはいかがでしょうか。制震構造は、様々な技術開発が行われていて、日々進歩し続けています。ホルムアルデヒド対策済みの物件ですので、健康リスクが少ないです。多種多様な不動産情報を有するホームプランナーまでお気軽にご連絡ください。お電話0120-971-570からお待ちしております。

厚木市上依知第30 新築戸建全6棟 3号棟のコメント(おすすめポイント)

こだわりポイント満載の厚木市上依知第30 新築戸建全6棟 3号棟。徒歩26分の距離に厚木市立藤塚中学校があるのも魅力。技術が進歩してきている制震構造で、地震を防いでくれます。ホルムアルデヒド対策済みの物件ですので、健康リスクが少ないです。不動産購入で失敗を避けるなら、まずはホームプランナーまでご連絡ください。プロのスタッフがお客様の不動産購入をサポート致します。

厚木市上依知第30 新築戸建全6棟 3号棟で募集中の物件

  1. 28.90坪 (95.57㎡)

    2,580万円(89.27万円/坪)

周辺施設

  • 厚木市立上依知小学校の画像

    小学校

    厚木市立上依知小学校

    1025m(13分)

  • 猿ヶ島スポーツセンターの画像

    スポーツ施設

    猿ヶ島スポーツセンター

    1257m(16分)

  • 厚木市依知北公民館の画像

    公民館

    厚木市依知北公民館

    1691m(22分)

  • 厚木上依知郵便局の画像

    郵便局

    厚木上依知郵便局

    1756m(22分)

  • 相愛病院の画像

    内科

    相愛病院

    1939m(25分)

  • 厚木市立藤塚中学校の画像

    中学校

    厚木市立藤塚中学校

    2003m(26分)

  • 相模原市立麻溝保育園の画像

    保育園

    相模原市立麻溝保育園

    2106m(27分)

  • 光明幼稚園の画像

    幼稚園

    光明幼稚園

    2262m(29分)

  • JA相模原市麻溝支店の画像

    銀行

    JA相模原市麻溝支店

    2270m(29分)

  • 相模原南警察署 麻溝交番の画像

    警察

    相模原南警察署 麻溝交番

    2377m(30分)

  • 下溝の画像

    下溝

    2459m(31分)

  • 相模原市消防局南消防署新磯分署の画像

    消防署

    相模原市消防局南消防署新磯分署

    4777m(60分)

近隣の物件

  1. 厚木市上依知

    3LDK (96.39㎡)

    2,580万円

  2. 厚木市上依知

    4LDK (96.38㎡)

    2,280万円

  3. 厚木市妻田西3丁目

    3LDK (81.81㎡)

    3,680万円

  4. 厚木市森の里5丁目

    4LDK (117.58㎡)

    2,450万円

厚木市上依知第30 新築戸建全6棟 3号棟

お気軽にお問い合わせください

無料お問い合わせ

株式会社ホームプランナー

0120-971-570

9:30~20:00

(休:水曜日)