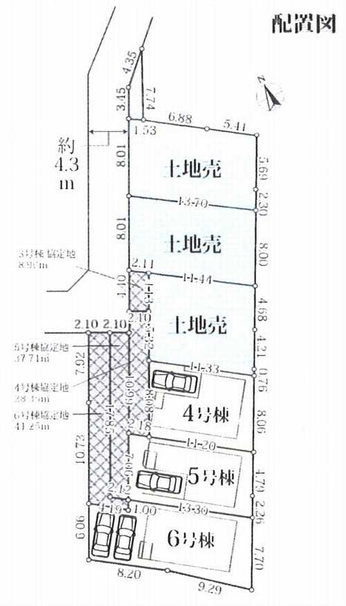
茅ヶ崎市美住町4期 新築戸建全6棟 6号棟

5,480万円

神奈川県茅ヶ崎市美住町

東海道本線「辻堂」駅徒歩23分

価格
5,480万円
間取り/建物面積
3LDK/98.95㎡
所在地
神奈川県茅ヶ崎市美住町
築年
2025年12月(予定)
駐車
有(2台)
交通

東海道本線辻堂」駅 徒歩23分

茅ヶ崎市美住町4期 新築戸建全6棟 6号棟の基本情報

物件名
茅ヶ崎市美住町4期 新築戸建全6棟 6号棟
価格
5,480万円
建物面積
98.95㎡
土地面積
49.04坪(162.14㎡)
築年月
2025年12月(予定)
総戸数
6戸
所在地
神奈川県茅ヶ崎市美住町
交通

東海道本線辻堂」駅 徒歩23分

茅ヶ崎市美住町4期 新築戸建全6棟 6号棟の詳細情報

設備条件
  • 閑静な住宅地
  • 海が近い
  • 駐車2台可
設備(その他)
    -
駐車場/月額
有(2台)/0円 車種による
土地権利
所有権
国土法届出
不要
用途地域
第一種低層住居専用
取引態様
仲介
引渡し
相談
備考
こだわりポイント満載の茅ヶ崎市美住町4期 新築戸建全6棟 6号棟。徒歩7分の場所に茅ケ崎市立松浪小学校があります。設備も充実している新築戸建ての物件はいかがでしょうか。ベタ基礎の物件は湿気や害虫にも強く、快適な環境を実現します。不動産購入での不安な点をホームプランナーのスタッフが解決いたしますので、まずはお気軽に0120-971-570へお電話下さい。

茅ヶ崎市美住町4期 新築戸建全6棟 6号棟のコメント(おすすめポイント)

こだわりポイント満載の茅ヶ崎市美住町4期 新築戸建全6棟 6号棟。徒歩7分の場所に茅ケ崎市立松浪小学校があります。こちらは清潔感のある新築戸建て物件です。シロアリなどの害虫の侵入を防ぐなら、ベタ基礎の物件。ホームプランナーは交通アクセスが便利な東海道本線辻堂近くにある一戸建て探しのサポートを致します。0120-971-570かchigasaki@shounan-homeplanner.co.jpまでご連絡下さい。

茅ヶ崎市美住町4期 新築戸建全6棟 6号棟で募集中の物件

  1. 29.93坪 (98.95㎡)

    5,480万円(183.09万円/坪)

周辺施設

  • 丸山内科クリニックの画像

    内科

    丸山内科クリニック

    331m(5分)

  • 茅ケ崎市小和田公民館の画像

    公民館

    茅ケ崎市小和田公民館

    396m(5分)

  • 茅ケ崎市立松浪小学校の画像

    小学校

    茅ケ崎市立松浪小学校

    528m(7分)

  • 湘南すずきクリニックの画像

    クリニック

    湘南すずきクリニック

    536m(7分)

  • まつなみ幼稚園の画像

    幼稚園

    まつなみ幼稚園

    615m(8分)

  • 茅ケ崎もりのこ保育園の画像

    保育園

    茅ケ崎もりのこ保育園

    631m(8分)

  • 湘南信用金庫若松町支店の画像

    銀行

    湘南信用金庫若松町支店

    720m(9分)

  • 平和町交番の画像

    警察

    平和町交番

    763m(10分)

  • 平和学園幼稚園の画像

    幼稚園

    平和学園幼稚園

    831m(11分)

  • 茅ケ崎市立松浪中学校の画像

    中学校

    茅ケ崎市立松浪中学校

    898m(12分)

  • 茅ヶ崎松が丘郵便局の画像

    郵便局

    茅ヶ崎松が丘郵便局

    940m(12分)

  • 茅ヶ崎市消防団第13分団の画像

    消防署

    茅ヶ崎市消防団第13分団

    1595m(20分)

近隣の物件

  1. 茅ヶ崎市柳島2丁目

    4LDK (98.82㎡)

    4,280万円

  2. 茅ヶ崎市柳島1丁目

    3LDK (87.36㎡)

    3,790万円

  3. 茅ヶ崎市西久保

    2SLDK (102.25㎡)

    3,399万円

  4. 茅ヶ崎市柳島1丁目

    3SLDK (95.63㎡)

    4,290万円

茅ヶ崎市美住町4期 新築戸建全6棟 6号棟

お気軽にお問い合わせください

無料お問い合わせ

株式会社ホームプランナー

0120-971-570

9:30~20:00

(休:水曜日)