厚木市酒井 新築戸建全2棟 A号棟

3,090万円

神奈川県厚木市酒井2413-5

小田急小田原線「本厚木」駅バス16分神奈川中央交通「下酒井」停歩3分

価格
3,090万円
間取り/建物面積
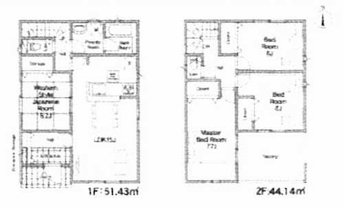
4LDK/93.57㎡
所在地
神奈川県厚木市酒井2413-5
築年
2025年9月(予定)
駐車
有(2台)
交通

小田急小田原線本厚木」駅 バス16分 神奈川中央交通「下酒井」 停歩3分

厚木市酒井 新築戸建全2棟 A号棟の基本情報

物件名
厚木市酒井 新築戸建全2棟 A号棟
価格
3,090万円
建物面積
93.57㎡
土地面積
38.14坪(126.11㎡)
築年月
2025年9月(予定)
総戸数
2戸
所在地
神奈川県厚木市酒井2413-5
交通

小田急小田原線本厚木」駅 バス16分 神奈川中央交通「下酒井」 停歩3分

厚木市酒井 新築戸建全2棟 A号棟の詳細情報

設備条件
  • 駐車2台可
設備(その他)
    -
駐車場/月額
有(2台)/0円 車種による
土地権利
所有権
国土法届出
不要
用途地域
第一種住居
取引態様
一般媒介
引渡し
相談
備考
徒歩13分の場所に厚木市立相川小学校があります。外観が魅力的な、2025年9月築の物件となっています。ベタ基礎の物件は多くの方にご好評で安全性が高いので安心です。ニーズのあるピカピカの新築物件となっています。ホームプランナーへのお問い合わせは0120-971-570からお待ちしております。まずはお気軽にご連絡ください。

厚木市酒井 新築戸建全2棟 A号棟のコメント(おすすめポイント)

ぜひ一度見ていただきたい、「厚木市酒井 新築戸建全2棟 A号棟」です。徒歩8分の距離に厚木市立相川中学校があるのも魅力。新築の物件を検討中の方はぜひ一度こちらの物件をご覧ください。ベタ基礎による建築の為、床下からの嫌な湿気も気になりません。厚木市の戸建て選びで、迷いが生じましたら不動産のプロであるホームプランナーが、的確にアドバイスをご提案致します。chigasaki@shounan-homeplanner.co.jpからご連絡下さい。

厚木市酒井 新築戸建全2棟 A号棟で募集中の物件

  1. 28.30坪 (93.57㎡)

    3,090万円(109.19万円/坪)

周辺施設

  • 相川郵便局の画像

    郵便局

    相川郵便局

    64m(1分)

  • 高橋内科医院の画像

    内科

    高橋内科医院

    114m(2分)

  • 厚木市立相川中学校の画像

    中学校

    厚木市立相川中学校

    631m(8分)

  • JAあつぎ 相川支所の画像

    銀行

    JAあつぎ 相川支所

    945m(12分)

  • 厚木市立相川小学校の画像

    小学校

    厚木市立相川小学校

    989m(13分)

  • 厚木消防本部相川分署の画像

    消防署

    厚木消防本部相川分署

    1018m(13分)

  • 相川保育所の画像

    保育園

    相川保育所

    1190m(15分)

  • 東名厚木病院の画像

    総合病院

    東名厚木病院

    2033m(26分)

  • 社家駅の画像

    社家駅

    2263m(29分)

  • 厚木警察署 愛甲石田駅前交番の画像

    警察

    厚木警察署 愛甲石田駅前交番

    2329m(30分)

  • 海老名市立有馬図書館の画像

    図書館

    海老名市立有馬図書館

    2439m(31分)

近隣の物件

  1. 厚木市上依知

    4LDK (96.38㎡)

    2,280万円

  2. 厚木市上依知

    4LDK (95.57㎡)

    2,580万円

  3. 厚木市妻田西3丁目

    3LDK (81.81㎡)

    3,680万円

  4. 厚木市森の里5丁目

    4LDK (117.58㎡)

    2,399万円

厚木市酒井 新築戸建全2棟 A号棟

お気軽にお問い合わせください

無料お問い合わせ

株式会社ホームプランナー

0120-971-570

9:30~20:00

(休:水曜日)