茅ヶ崎市香川5丁目 新築戸建 全11棟 3号棟

3,880万円

神奈川県茅ヶ崎市香川5丁目

相模線「香川」駅徒歩5分

価格
3,880万円
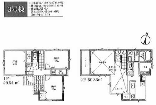
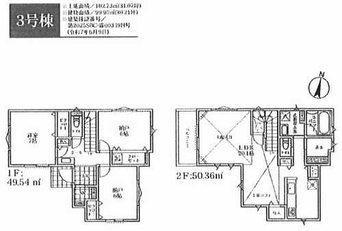
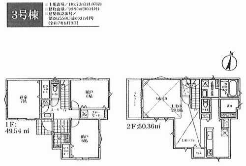
間取り
1LDK+2S(納戸)
土地面積
102.73㎡
所在地
神奈川県茅ヶ崎市香川5丁目
交通

相模線香川」駅 徒歩5分

建物面積
99.90㎡
築年月
2025年11月(予定)

物件の特徴

  • カウンターキッチン

セールスポイント

ホームプランナーでは仲介手数料0円(無料)となり、諸経費約135万円軽減可能です。フローリングなので、どんな世代の方にもなじみます。駅まで徒歩5分の好立地です。洗面化粧台があるので、スキンケア用品の多い女性も安心。トイレが2ヶ所にあるので複数人でも快適に暮らせます。新築戸建てで新生活を始めてはいかがでしょうか。癒しと安らぎを求めるなら、1SLDKの間取り。

ポイント

駅徒歩5分以内 全居室洋室 システムキッチン 洗面化粧台 駅徒歩10分以内

担当者のコメント

竹井 麻紀

ホームプランナーでは仲介手数料0円(無料)となり、諸経費約135万円軽減可能です。ぜひ一度見ていただきたい、「茅ヶ崎市香川5丁目 新築戸建 全11棟」です。徒歩17分の場所に茅ケ崎市立香川小学校があります。今回ご紹介しているこちらの物件は南向きです。3,980万円と、魅力的な価格の物件で新生活を始めませんか。茅ヶ崎市より一戸建てを探すなら、交通面で不便を感じない相模線香川周辺はいかがでしょうか。詳しい内容は、0120-971-570にホームプランナーまでお聞き下さい。

基本情報

販売戸数
1戸
総戸数
11戸
間取り / 詳細
1LDK+2S(納戸)
LDK 20.1帖 1室/洋室 7.0帖 1室/S 6.0帖 2室
ロフト・シューズインクローク・書斎・パントリー
向き
建物面積(坪数)
99.90㎡(30.21坪)
土地面積(坪数)
102.73㎡(31.07坪)
建ぺい率 /
容積率
60%/200%
築年月
2025年11月(予定)
駐車場 /
月額料金
有(1台) 0円 ※車種による
土地権利
所有権
土地
(敷金 / 保証金)
- / -
建物構造
木造(一部木造) / 2階建
傾斜地部分面積
-
路地状敷地
-
私道負担面積
-
私道負担割合 : 1/12
セットバック
高圧線下面積
-
施工会社
-
用途地域
第一種中高層住居専用
地目 / 地勢
宅地 / -
接道状況
一方(西 公道 4.5m 間口 7.7m)
国土法届出要否
不要
都市計画
市街化区域
総区画数 /
販売区画数
11区画/1区画
現況
未完成
その他
法令上の制限
高度地区/準防火地域/私道持分有
取引態様
仲介
引渡し
相談
取引条件の
有効期限
2026年02月18日

設備条件

設備条件
  • 閑静な住宅地 / フローリング / ロフト付き / バルコニー / 都市ガス / 公営水道 / 公共下水 / システムキッチン / カウンターキッチン / トイレ2ヶ所 / 収納豊富
設備(その他)
    -

その他

物件番号
96983322
管理コード
-
建築確認番号
第2025SBC-確00349H号
情報更新日
2026年02月04日
次回更新予定日
2026年02月18日
取扱会社
  • 株式会社ホームプランナー
  • 神奈川県茅ヶ崎市共恵2-8-33 
  • TEL:0120-971-570
  • 神奈川県知事 (2) 第30075号
備考
ホームプランナーでは仲介手数料0円(無料)となり、諸経費約135万円軽減可能です。駅まで徒歩5分なので、移動時間を短縮できます。価格3,980万円のお住まいはこちらです。これからの新生活での暮らしを一新するために、新築戸建てはいかがでしょうか。納戸があるので大きな荷物を収納できます。動線を意識したデザインのシステムキッチン付きで作業能率が上がります。3口コンロが付いているので、3つの料理を同時に進められて時短につながります。

茅ヶ崎市香川5丁目 新築戸建 全11棟の他の物件

  1. 1号棟

    1SLDK (98.95㎡)

    3,880万円(129.64万円/坪)

  2.  2号棟

    1SLDK (99.36㎡)

    3,880万円(129.12万円/坪)

  3. 6号棟

    2SLDK (97.71㎡)

    3,980万円(134.69万円/坪)

  4. 7号棟

    1SLDK (95.63㎡)

    3,980万円(137.62万円/坪)

  5. 8号棟

    2SLDK (97.29㎡)

    3,980万円(135.24万円/坪)

  6. 9号棟

    1SLDK (96.82㎡)

    3,680万円(125.68万円/坪)

周辺施設

  • 茅ヶ崎香川郵便局の画像

    郵便局

    茅ヶ崎香川郵便局

    344m(5分)

  • 茅ヶ崎市役所香川駅前出張所の画像

    市役所・区役所

    茅ヶ崎市役所香川駅前出張所

    372m(5分)

  • 茅ケ崎市立香川保育園の画像

    保育園

    茅ケ崎市立香川保育園

    467m(6分)

  • 香川駅の画像

    香川駅

    469m(6分)

  • 静岡中央銀行香川支店の画像

    銀行

    静岡中央銀行香川支店

    522m(7分)

  • 香川クリニックの画像

    クリニック

    香川クリニック

    540m(7分)

  • 香川富士見丘幼稚園の画像

    幼稚園

    香川富士見丘幼稚園

    614m(8分)

  • めぐっみの子幼稚園の画像

    幼稚園

    めぐっみの子幼稚園

    792m(10分)

  • 緒方医院の画像

    内科

    緒方医院

    1057m(14分)

  • 茅ケ崎市立香川小学校の画像

    小学校

    茅ケ崎市立香川小学校

    1313m(17分)

  • 茅ヶ崎警察署 西久保駐在所の画像

    警察

    茅ヶ崎警察署 西久保駐在所

    1400m(18分)

  • 茅ケ崎市立図書館香川分館の画像

    図書館

    茅ケ崎市立図書館香川分館

    1405m(18分)

  • 茅ケ崎市立北陽中学校の画像

    中学校

    茅ケ崎市立北陽中学校

    1644m(21分)

  • JAさがみ寒川支店の画像

    その他

    JAさがみ寒川支店

    1658m(21分)

支払いシミュレーション

月々の支払額
9.6
購入希望物件価格
万円
頭金
万円
金利
%
返済額(ボーナス1回分)
万円
返済期間

※ボーナスは自動で年2回分で計算されます。

近隣の物件

  1. 茅ヶ崎市柳島2期 新築戸建全2棟 2号棟

    茅ヶ崎市柳島2丁目

    3SLDK (105.31㎡)

    4,799万円

  2. 新築戸建 茅ヶ崎市柳島第11 全8棟

    茅ヶ崎市柳島2丁目

    4SLDK (95.98㎡)

    4,080万円

  3. 茅ヶ崎市柳島2期 新築戸建全2棟 1号棟

    茅ヶ崎市柳島2丁目

    4LDK (105.72㎡)

    4,899万円

  4. 茅ヶ崎市柳島第11 新築戸建全8棟

    茅ヶ崎市柳島2丁目

    4LDK (93.14㎡)

    3,580万円

茅ヶ崎市香川5丁目 新築戸建 全11棟

茅ヶ崎市香川5丁目 新築戸建 全11棟

3,880万円

-

1LDK+2S(納戸)(99.90㎡)

お気軽にお問い合わせください

無料お問い合わせ

株式会社ホームプランナー

0120-971-570

9:30~20:00

(休:水曜日)