大和市中央林間西5丁目 新築戸建全3棟 №1

1月25日 値下げ

5,890万円

神奈川県大和市中央林間西5丁目

東急田園都市線「中央林間」駅徒歩13分

小田急江ノ島線「中央林間」駅徒歩13分

小田急江ノ島線「南林間」駅徒歩21分

価格
5,890万円
間取り
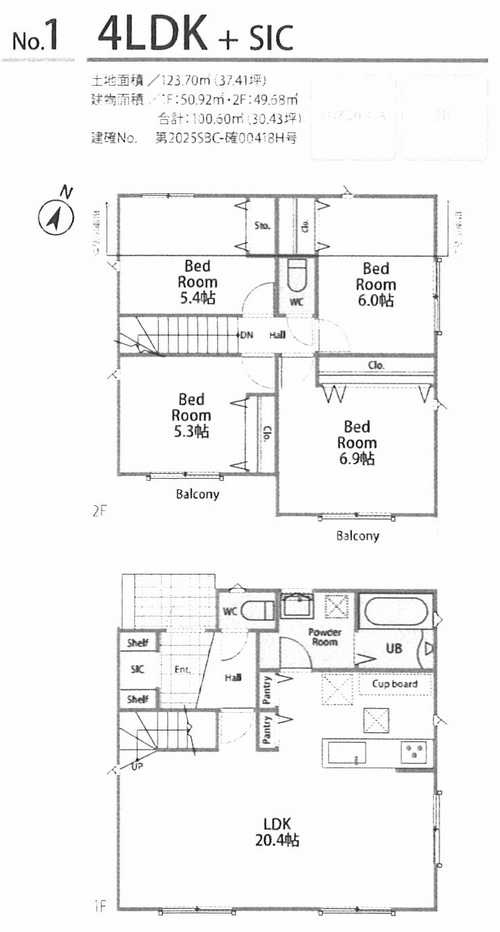
4LDK
土地面積
123.70㎡
所在地
神奈川県大和市中央林間西5丁目
交通

東急田園都市線中央林間」駅 徒歩13分

小田急江ノ島線中央林間」駅 徒歩13分

小田急江ノ島線南林間」駅 徒歩21分

建物面積
100.60㎡
築年月
2025年9月(予定)

物件の特徴

  • バストイレ別

  • TVモニタ付きインターホン

  • カウンターキッチン

  • 浴室乾燥機

セールスポイント

ホームプランナーでは仲介手数料0円(無料)となり、諸経費217万円軽減可能です。東急田園都市線中央林間駅周辺への引っ越しをお考えなら「大和市中央林間西5丁目 新築戸建全3棟 №1」。通学区域の小学校は大和市立緑野小学校徒歩2分。新築戸建てはみんなの夢です。東急田園都市線中央林間付近で満足のいく暮らしを送るなら、ホームプランナーまでお気軽にご要望をお聞かせ下さい。

ポイント

対面式キッチン クロゼット 浄水器 バルコニー 3口以上コンロ

担当者のコメント

竹井 麻紀

ホームプランナーでは仲介手数料0円(無料)となり、諸経費217万円軽減可能です。安らぎとゆとりを手に入れるための6,490万円です。仲介手数料ゼロと、初期費用軽減につながります。来訪者をモニターで確認できるTVインターホン付きです。システムキッチンは使いやすく汚れにくいのでご好評です。玄関収納を設置すると毎日綺麗な玄関を保つ事ができます。洗濯物がよく乾く南東向きがオススメポイントです。建物面積100.6平米なので、使い勝手がいいです。

基本情報

販売戸数
3戸
総戸数
3戸
間取り / 詳細
4LDK
LDK 20.4帖 1室/洋室 6.9帖 1室/洋室 6.0帖 1室/洋室 5.4帖 1室/洋室 5.3帖 1室
向き
南東
建物面積(坪数)
100.60㎡(30.43坪)
土地面積(坪数)
123.70㎡(37.41坪)
建ぺい率 /
容積率
50%/80%
築年月
2025年9月(予定)
駐車場 /
月額料金
有(1台) 0円 車種による
土地権利
所有権
土地
(敷金 / 保証金)
- / -
建物構造
木造 / 2階建
傾斜地部分面積
-
路地状敷地
-
私道負担面積
-
セットバック
高圧線下面積
-
施工会社
-
用途地域
第一種低層住居専用
地目 / 地勢
宅地 / -
接道状況
一方(西 公道 4.0m)
国土法届出要否
不要
都市計画
市街化区域
総区画数 /
販売区画数
3区画/3区画
現況
未完成
その他
法令上の制限
準防火地域
取引態様
一般媒介
引渡し
相談
取引条件の
有効期限
2026年02月18日

設備条件

設備条件
  • 新婚さん向け / ファミリー向け / キャンペーン / 仲介手数料無料 / 旗竿地 / フローリング / バルコニー / 都市ガス / 公営水道 / 公共下水 / 24時間換気システム / 電気有 / 2面バルコニー / ガスコンロ / コンロ2口以上 / 食器洗い乾燥機 / システムキッチン / カウンターキッチン / コンロ3口 / バス・トイレ別 / 追焚機能浴室 / 浴室乾燥機 / 温水洗浄便座 / トイレ2ヶ所 / 浴室1坪以上 / 床下収納 / 収納豊富 / TVモニタ付インターホン / 複層ガラス / ディンプルキー
設備(その他)
    -

その他

物件番号
98066912
管理コード
-
建築確認番号
第2025SBC-確00418H号
情報更新日
2026年02月04日
次回更新予定日
2026年02月18日
取扱会社
  • 株式会社ホームプランナー
  • 神奈川県茅ヶ崎市共恵2-8-33 
  • TEL:0120-971-570
  • 神奈川県知事 (2) 第30075号
備考
ホームプランナーでは仲介手数料0円(無料)となり、諸経費217万円軽減可能です。日常生活で利用頻度の高い水回りだからこそ、使い勝手のいいシステムキッチンを選んでみませんか。訪問者をカメラで確認できるTVインターホン設置済み。利便性に優れ、家族で暮らすにもピッタリな4LDKです。毎日の身支度を一箇所でできる洗面化粧台は、利便性が高いです。新築ならではの「新しさ」がとても魅力です。一生に一度のマイホーム探しは、ぜひ新築戸建てで。追い焚き機能付の浴室です。

周辺施設

  • 中央林間もりのこ保育園の画像

    保育園

    中央林間もりのこ保育園

    38m(1分)

  • 大和市立緑野小学校の画像

    小学校

    大和市立緑野小学校

    145m(2分)

  • 松原学園幼稚園の画像

    幼稚園

    松原学園幼稚園

    632m(8分)

  • 静岡中央銀行中央林間支店の画像

    銀行

    静岡中央銀行中央林間支店

    846m(11分)

  • 中央林間駅前郵便局の画像

    郵便局

    中央林間駅前郵便局

    855m(11分)

  • 大和市立南林間中学校の画像

    中学校

    大和市立南林間中学校

    965m(13分)

  • 聖セシリア幼稚園の画像

    幼稚園

    聖セシリア幼稚園

    980m(13分)

  • 中央林間の画像

    中央林間

    1056m(14分)

  • 座間市役所 小松原コミュニティセンターの画像

    公民館

    座間市役所 小松原コミュニティセンター

    1120m(14分)

  • 大和成和病院の画像

    総合病院

    大和成和病院

    1183m(15分)

  • 医療法人興生会相模台病院の画像

    総合病院

    医療法人興生会相模台病院

    1228m(16分)

  • 相模原市消防局南消防署東林分署の画像

    消防署

    相模原市消防局南消防署東林分署

    1489m(19分)

支払いシミュレーション

月々の支払額
9.6
購入希望物件価格
万円
頭金
万円
金利
%
返済額(ボーナス1回分)
万円
返済期間

※ボーナスは自動で年2回分で計算されます。

近隣の物件

  1. 大和市下鶴間 新築戸建全1棟

    大和市下鶴間

    4LDK (95.42㎡)

    5,190万円

  2. 大和市上和田3期 新築戸建全2棟 1号棟

    大和市上和田

    3SLDK (96.30㎡)

    3,899万円

  3. 大和市上草柳7丁目  新築戸建全2棟 2号棟

    大和市上草柳7丁目

    4LDK (116.12㎡)

    4,998万円

  4. 大和市上草柳7丁目  新築戸建全2棟 1号棟

    大和市上草柳7丁目

    2SLDK (104.32㎡)

    4,398万円

大和市中央林間西5丁目 新築戸建全3棟 №1

大和市中央林間西5丁目 新築戸建全3棟 №1

5,890万円

-

4LDK(100.60㎡)

お気軽にお問い合わせください

無料お問い合わせ

株式会社ホームプランナー

0120-971-570

9:30~20:00

(休:水曜日)