茅ヶ崎市香川5丁目 新築戸建 全11棟 1号棟

3,980万円

神奈川県茅ヶ崎市香川5丁目

相模線「香川」駅徒歩5分

価格
3,980万円
間取り
1LDK+2S(納戸)
土地面積
101.45㎡
所在地
神奈川県茅ヶ崎市香川5丁目
交通

相模線香川」駅 徒歩5分

建物面積
98.95㎡
築年月
2025年9月(予定)

物件の特徴

  • バストイレ別

  • TVモニタ付きインターホン

  • カウンターキッチン

  • 浴室乾燥機

セールスポイント

ホームプランナーでは仲介手数料0円(無料)となり、諸経費約135万円軽減可能です。建物面積は98.95平米となっており広さも十分ではないでしょうか。ゆとりある空間を実現した、勾配天井の住宅となっております。全居室が洋室ですので、お掃除がしやすいです。安らぎの空間は、ゆとりのあるリビングとダイニングキッチンのあるSLDKがおすすめです。来訪者を確認できる、TVインターホン付きです。

ポイント

浴室乾燥機 勾配天井 バルコニー フローリング 閑静な住宅地

担当者のコメント

竹井 麻紀

ホームプランナーでは仲介手数料0円(無料)となり、諸経費約135万円軽減可能です。「茅ヶ崎市香川5丁目 新築戸建 全10棟」のここがイチオシ。家から344mのところに茅ヶ崎香川郵便局があります。来訪者の顔が確認できる、安心のTVインターホン付きです。物件の向きは南向きです。茅ヶ崎市でステキな生活を送るために、ホームプランナーのスタッフが不動産探しをサポートさせていただきます。

基本情報

販売戸数
1戸
総戸数
10戸
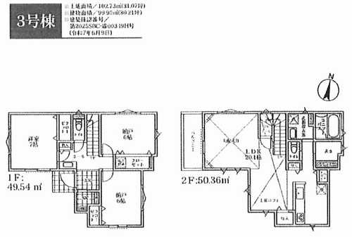
間取り / 詳細
1LDK+2S(納戸)
LDK 18.3帖 1室/S 7.5帖 1室/S 5.9帖 1室
向き
建物面積(坪数)
98.95㎡(29.93坪)
土地面積(坪数)
101.45㎡(30.68坪)
建ぺい率 /
容積率
60%/180%
築年月
2025年9月(予定)
駐車場 /
月額料金
有(1台) 0円
土地権利
所有権
土地
(敷金 / 保証金)
- / -
建物構造
木造(一部木造) / 2階建
傾斜地部分面積
-
路地状敷地
-
私道負担面積
-
私道負担割合 : 1/12
セットバック
高圧線下面積
-
施工会社
-
用途地域
第一種中高層住居専用
地目 / 地勢
宅地 / 平坦
接道状況
一方(東 公道 4.5m)
国土法届出要否
不要
都市計画
市街化区域
総区画数 /
販売区画数
10区画/1区画
現況
未完成
その他
法令上の制限
景観法/高度地区/準防火地域/私道持分有
取引態様
仲介
引渡し
相談
取引条件の
有効期限
2025年12月20日

設備条件

設備条件
  • 陽当り良好 / 閑静な住宅地 / 天井が高い / フローリング / ロフト付き / バルコニー / 都市ガス / 公営水道 / 公共下水 / 24時間換気システム / システムキッチン / カウンターキッチン / バス・トイレ別 / 追焚機能浴室 / 浴室乾燥機 / 温水洗浄便座 / 洗髪洗面化粧台 / トイレ2ヶ所 / 浴室1坪以上 / 床下収納 / TVモニタ付インターホン / 複層ガラス / 住戸内覧可能
設備(その他)
    -

その他

物件番号
96982744
管理コード
-
建築確認番号
第2024SBC-確02468Y号
情報更新日
2025年12月06日
次回更新予定日
2025年12月20日
取扱会社
  • 株式会社ホームプランナー
  • 神奈川県茅ヶ崎市共恵2-8-33 
  • TEL:0120-971-570
  • 神奈川県知事 (2) 第30075号
備考
ホームプランナーでは仲介手数料0円(無料)となり、諸経費約135万円軽減可能です。徒歩17分の場所に茅ケ崎市立香川小学校があります。システムキッチンは必要な物が組み込まれているため、すぐ調理できます。今回ご紹介しているこちらの物件は南向きです。相模線香川近くよりご提案しております、ホームプランナーならではの戸建て情報を是非ご覧下さい。連絡先は0120-971-570です。

茅ヶ崎市香川5丁目 新築戸建 全11棟の他の物件

  1.  2号棟

    1SLDK (99.36㎡)

    3,980万円(132.45万円/坪)

  2. 3号棟

    1SLDK (99.90㎡)

    3,980万円(131.74万円/坪)

  3. 6号棟

    2SLDK (97.71㎡)

    4,080万円(138.07万円/坪)

  4. 7号棟

    1SLDK (95.63㎡)

    4,080万円(141.08万円/坪)

  5. 8号棟

    2SLDK (97.29㎡)

    4,080万円(138.63万円/坪)

  6. 9号棟

    1SLDK (96.82㎡)

    3,780万円(129.1万円/坪)

周辺施設

  • 茅ヶ崎香川郵便局の画像

    郵便局

    茅ヶ崎香川郵便局

    344m(5分)

  • 茅ヶ崎市役所香川駅前出張所の画像

    市役所・区役所

    茅ヶ崎市役所香川駅前出張所

    372m(5分)

  • 茅ケ崎市立香川保育園の画像

    保育園

    茅ケ崎市立香川保育園

    467m(6分)

  • 香川駅の画像

    香川駅

    469m(6分)

  • 静岡中央銀行香川支店の画像

    銀行

    静岡中央銀行香川支店

    522m(7分)

  • 香川クリニックの画像

    クリニック

    香川クリニック

    540m(7分)

  • 香川富士見丘幼稚園の画像

    幼稚園

    香川富士見丘幼稚園

    614m(8分)

  • めぐっみの子幼稚園の画像

    幼稚園

    めぐっみの子幼稚園

    792m(10分)

  • 緒方医院の画像

    内科

    緒方医院

    1057m(14分)

  • 茅ケ崎市立香川小学校の画像

    小学校

    茅ケ崎市立香川小学校

    1313m(17分)

  • 茅ヶ崎警察署 西久保駐在所の画像

    警察

    茅ヶ崎警察署 西久保駐在所

    1400m(18分)

  • 茅ケ崎市立図書館香川分館の画像

    図書館

    茅ケ崎市立図書館香川分館

    1405m(18分)

  • 茅ケ崎市立北陽中学校の画像

    中学校

    茅ケ崎市立北陽中学校

    1644m(21分)

  • JAさがみ寒川支店の画像

    その他

    JAさがみ寒川支店

    1658m(21分)

支払いシミュレーション

月々の支払額
9.6
購入希望物件価格
万円
頭金
万円
金利
%
返済額(ボーナス1回分)
万円
返済期間

※ボーナスは自動で年2回分で計算されます。

近隣の物件

  1. 茅ヶ崎市柳島第11 新築戸建全8棟 

    茅ヶ崎市柳島2丁目

    4SLDK (95.98㎡)

    3,980万円

  2. 茅ヶ崎市南湖4期 新築戸建全2棟 1号棟

    茅ヶ崎市南湖6丁目

    4LDK (105.63㎡)

    6,699万円

  3. 茅ヶ崎市柳島第11 新築戸建全8棟

    茅ヶ崎市柳島2丁目

    4LDK (98.82㎡)

    4,280万円

  4. 茅ヶ崎市南湖4期 新築戸建全2棟 2号棟

    茅ヶ崎市南湖6丁目

    3SLDK (105.41㎡)

    6,499万円

茅ヶ崎市香川5丁目 新築戸建 全11棟

茅ヶ崎市香川5丁目 新築戸建 全11棟

3,980万円

-

1LDK+2S(納戸)(98.95㎡)

お気軽にお問い合わせください

無料お問い合わせ

株式会社ホームプランナー

0120-971-570

9:30~20:00

(休:水曜日)